Services
Wir unterstützen Sie zudem in folgenden Bereichen:
- Beratung
- Machbarkeitsstudie
- Individualisierung des Planes
- Ausführung Ihres Projektes
- Gebietsschutz
- Sprachanpassung Ihres Planes
- Energieausweis und Bauphysik
- Statik | Externes Service
Villa Volante
Visualisierung
zum Vergrößern anklicken
Wir freuen uns, daß Sie bei B(u)B Ihr Haus gefunden haben.
Downloads:
Weitere Bilder
Blick zu Geschoss 02 Schlafen
zum Vergrößern anklicken
Blick von Küche zu Wohnraum Salon
zum Vergrößern anklicken
Planpreise + Optionen
Ergebnis Suchfilter:
Nettofläche: 251 bis 300m |
Grundstück: geneigt |
Geschosse: mehrgeschossig |
Besonderheiten: klassisch + elegant
PROJEKT BESCHREIBUNG
Anzahl der Geschosse: 3
Bebaute Fläche 258 m²
NGF Nettogrundfläche gesamt: 291 m²
BGF Bruttogrundfläche gesamt: 391 m²
Projekt Detail
Villa Volante ist ein luxuriöses Haus mit offenem Wohnkonzept.
Das Projekt zeichnet sich durch eine Anordnung der Wohnbereiche auf mehreren Ebenen aus (Splitlevel). Diese Anordnung bewirkt eine räumliche Zonierung aber die Räume werden nicht von einander abgetrennt, sondern gehen fließend ineinander über.
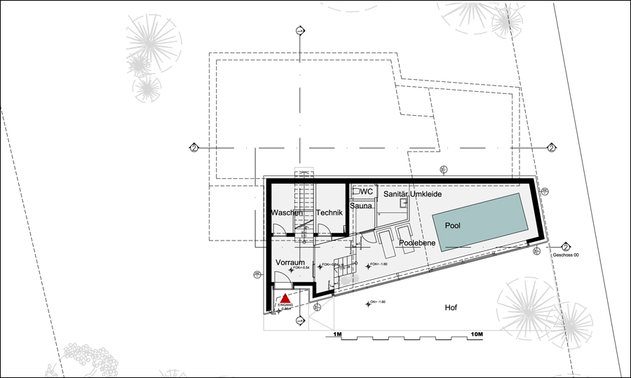
Es werden zwei separate Eingänge angeboten, dadurch ist Geschoss 00 (Wellness Bereich) offen für verschiedene Nutzungsarten.
Der vorgeschlagene Wellnessbereich auf diesem Geschoss ist eine hochwertige Ergänzung des großzügigen Design Konzeptes.
Durch die gebogene Dachform entsteht ein spektakuläres Oberlicht, das dem Innenraum eine dramatische Atmosphäre verleiht.
Der Dachanstieg erzeugt eine doppelte Raumhöhe in der Koch-, Ess- und Wohnebene. Die Galerie mit Bibliotheksfunktion macht den fließenden Raum auf besondere Art erlebbar.
Geschoss 00:
Eingang | Abstell- und Technikräume | Sauna | Sanitär | Wellness | Hof
Geschoss 01:
Eingang | WC | Kochen Essen Wohnen | Salon | Terrasse
Geschoss 02:
Galerie / Bibliothek | 2 Schlafzimmer | Bad und WC
Geplanter Standort: Baden bei Wien AUT
Urheber
Söhne & Partner Architekten
http://www.soehnepartner.com








