Services
Wir unterstützen Sie zudem in folgenden Bereichen:
- Beratung
- Machbarkeitsstudie
- Individualisierung des Planes
- Ausführung Ihres Projektes
- Gebietsschutz
- Sprachanpassung Ihres Planes
- Energieausweis und Bauphysik
- Statik | Externes Service
Haus für 2
Visualisierung
zum Vergrößern anklicken
Wir freuen uns, daß Sie bei B(u)B Ihr Haus gefunden haben.
Downloads:
Weitere Bilder
Planpreise + Optionen
Ergebnis Suchfilter:
Nettofläche: 61 bis 180m |
Grundstück: geneigt |
Geschosse: zweigeschossig |
Besonderheiten: reduziert + simpel
PROJEKT BESCHREIBUNG
Anzahl der Geschosse: 2 (EG + OG)
Bebaute Fläche 131 m²
NGF Nettogrundfläche gesamt: 155 m²
BGF Bruttogrundfläche gesamt: 195 m²
Projekt Detail
House for 2 ist ideal für ein Paar.
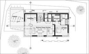
Das Haus erschließt sich vom Erdgeschoss aus wobei alle Wohn – und Aufenthaltsbereiche im Obergeschoss anlegt wurden.
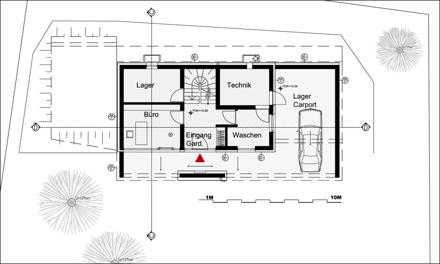
Das Erdgeschoss bietet ausreichend Stauraum und andere Funktionsbereiche, sowie einen überdachten Carport und Vorplatz.
Über eine zentral gelegene Stiege gelangt man direkt in den großzügigen, offenen Wohnbereich mit Bibliothek, sowie Küche und Essplatz. Die Firstpfette überspannt den Raum stützenfrei, großflächige Fensterflächen und eine Terrasse verbinden den Wohnraum mit dem Außenraum.
Das Schlafzimmer wird direkt mit dem Badezimmer verbunden, eine Glaswand stellt eine Sichtverbindung her.
Geschoss 00:
Eingang und Garderobe | Büro | Lager und Technik | Waschen | Carport überdacht
Geschoss 01:
Bibliothek| Wohnen Essen Kochen | Schlafen | Bad und WC
Geplanter Standort: Steiermark | AUT
Urheber
revolver architecture
http://www.revolver.co.at/






