Services
Wir unterstützen Sie zudem in folgenden Bereichen:
- Beratung
- Machbarkeitsstudie
- Individualisierung des Planes
- Ausführung Ihres Projektes
- Gebietsschutz
- Sprachanpassung Ihres Planes
- Energieausweis und Bauphysik
- Statik | Externes Service
Double Recess
Visualisierung
zum Vergrößern anklicken
Wir freuen uns, daß Sie bei B(u)B Ihr Haus gefunden haben.
Downloads:
Weitere Bilder
Planpreise + Optionen
Ergebnis Suchfilter:
Nettofläche: 251 bis 300m |
Grundstück: geneigt |
Geschosse: zweigeschossig |
Besonderheiten: avant-garde
PROJEKT BESCHREIBUNG
Anzahl der Geschosse: 2
Bebaute Fläche 247 m²
NGF Nettogrundfläche gesamt: 268 m²
BGF Bruttogrundfläche gesamt: 355 m²
Projekt Detail
Double Recess ist pure Dynamik.
Als Doppelhauskonzept wurden diese beiden Häuser von den Architekten entworfen. (Eine Ausführung als Einzelhaus ist natürlich möglich – siehe Projekt Single Recess).
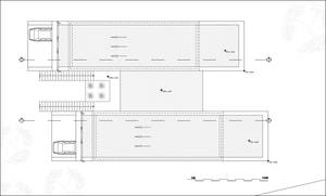
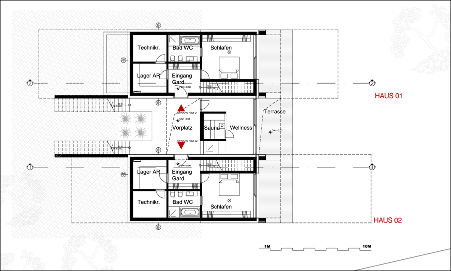
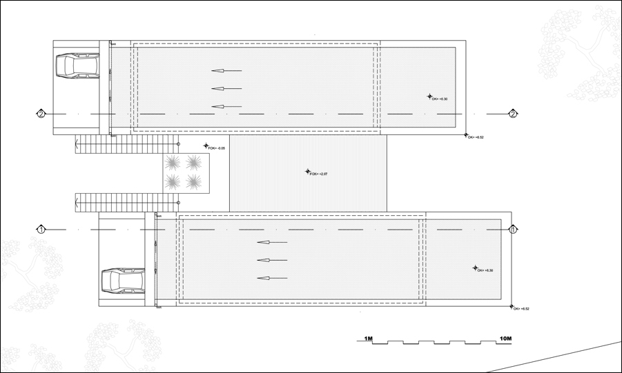
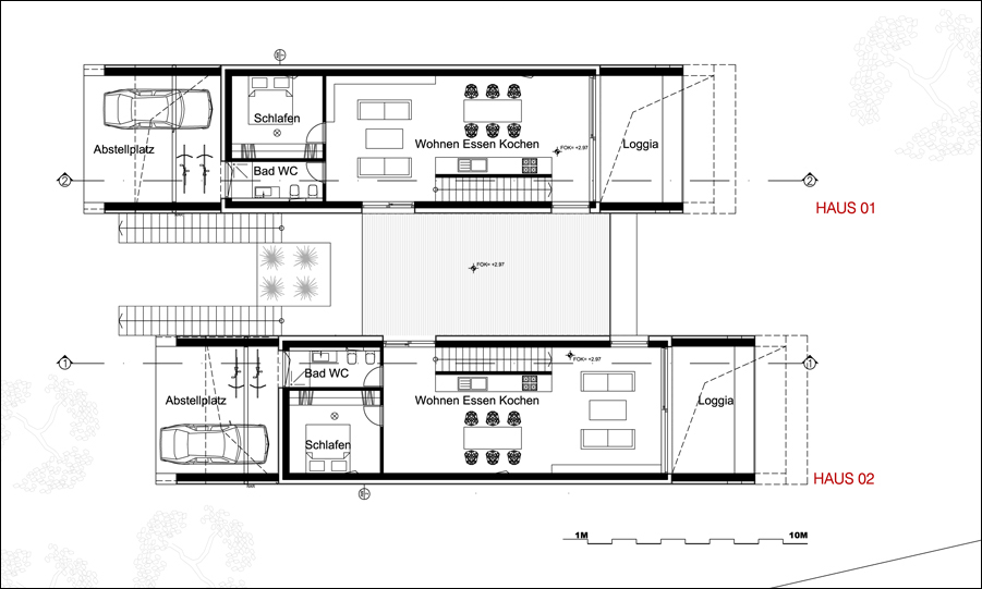
Die Häuser beeindrucken durch die dynamischen, formschönen Baukörper, die in ihrer Mitte einen spannenden Außenraum aufspannen. Dieser wird in Geschoss 00 als gemeinsamer Sauna und Wellnessbereich genutzt und in Geschoss 01 bietet er eine große gemeinsame Terrasse.
Die Grundrisse, verteilt auf zwei Ebenen, sind schlicht, großzügig und äußerst platzökonomisch. Gangflächen werden vermieden, die Stiegen werden wie eine Skulptur in den Wohnraum miteingebunden.
Dieses Haus bietet reichlich Platz für zwei Familien.
Im Eingangsgeschoss befinden sich Lager- und Abstellbereiche, sowie ein Technikraum. Im vorderen Teil dieses Geschosses wird ein großzügiger Schlafraum mit eigenem Bad und WC angeordnet.
Zum Garten hin ist dieser Raum verglast und wird durch eine Terrasse noch erweitert.
Erreicht man Geschoss 01 ist das Raumerlebnis beeindruckend: ein großer offener und dynamischer Wohn-, Ess- und Kochraum der sich in einer Loggia nach außen hin fortsetzt.
Geschoss 00:
Eingang | Abstellraum und Lager | Technikraum | Bad mit WC | Schlafen | Terrasse
Geschoss 01:
Wohnen Kochen Essen | Schlafzimmer | Bad und WC | Loggia
Geplanter Standort: Nähe des Stausees Lipno | CZE
Urheber
SYNC Architecture
www.sync-architecture.com






