Services
Wir unterstützen Sie zudem in folgenden Bereichen:
- Beratung
- Machbarkeitsstudie
- Individualisierung des Planes
- Ausführung Ihres Projektes
- Gebietsschutz
- Sprachanpassung Ihres Planes
- Energieausweis und Bauphysik
- Statik | Externes Service
Schnuggi
Visualisierung
zum Vergrößern anklicken
Wir freuen uns, daß Sie bei B(u)B Ihr Haus gefunden haben.
Downloads:
Weitere Bilder
Planpreise + Optionen
Ergebnis Suchfilter:
Nettofläche: bis 60m |
Grundstück: geneigt |
Geschosse: zweigeschossig |
Besonderheiten: jung + wild
PROJEKT BESCHREIBUNG
Anzahl der Geschosse: 2
Bebaute Fläche 33 m²
NGF Nettogrundfläche gesamt: 43 m²
BGF Bruttogrundfläche gesamt: 61 m²
Projekt Detail
Schnuggi ist ein ausdrucksstarkes Haus mit Witz.
Der perfekte Rückzugsort für das Wochenende, oder eine Erweiterung zu einem bestehenden Haus oder auch das eine wahre Traumhaus für alle die es reduziert mögen.
Auf zwei Etagen mit insgesamt 43m² Wohnfläche – das perfekte und kostengünstige Haus für designinteressierte Paare oder Singles mit Freiheitssinn.
Die Eingangsebene bietet genug Stauraum und eine kleine Garderobe. Das ganze Eingangsgeschoss ist wie ein Sockel, der die Wohnebene in die Höhe hebt und somit Ausblicke verschafft.
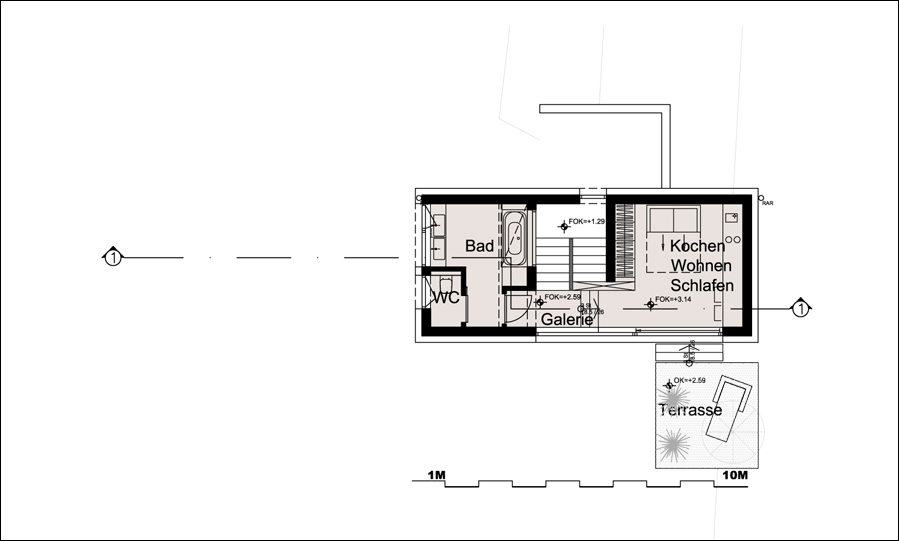
Das Bad ist eine Besonderheit im Designkonzept. Es ist unter dem Satteldach angeordnet und hat somit die größte Raumhöhe – bis zu 4.25m – verfügt über Dachfenster und seitliche Verglasungen zum Wohnraum (Stiege) sowie großzügigen Fensterflächen, eine wahre Wellnessoase.
Dieser Innenraum ist spektakulär.
Das restliche Wohngeschoss (Geschoss 01) ist auf 2 Ebenen verteilt, der Wohnraum wird mittels 3 Stufen angehoben. Alle Funktionen sind kompakt in einem Raum angeordnet:
Schlafen, Wohnen, Kochen und Essen. Vergrößert wird dieser Raum durch eine großzügige Verglasung und eine vorgelagerte Terrasse.
Geschoss 00:
Eingang | Abstellraum
Geschoss 01:
Galerie | Bad und WC | Wohnen Kochen Essen Schlafen | Terrasse
Geplanter Standort: Eichgraben, Niederösterreich | AUT
Urheber
Sigs bauplanungs gmbh
www.sigs.at





