Services
Wir unterstützen Sie zudem in folgenden Bereichen:
- Beratung
- Machbarkeitsstudie
- Individualisierung des Planes
- Ausführung Ihres Projektes
- Gebietsschutz
- Sprachanpassung Ihres Planes
- Energieausweis und Bauphysik
- Statik | Externes Service
Mini Me
Visualisierung
zum Vergrößern anklicken
Wir freuen uns, daß Sie bei B(u)B Ihr Haus gefunden haben.
Downloads:
Weitere Bilder
Planpreise + Optionen
Ergebnis Suchfilter:
Nettofläche: bis 60m |
Grundstück: weitgehend eben |
Geschosse: eingeschossig |
Besonderheiten: avant-garde
PROJEKT BESCHREIBUNG
Anzahl der Geschosse: 1
Bebaute Fläche 64 m²
NGF Nettogrundfläche gesamt: 47 m²
BGF Bruttogrundfläche gesamt: 64 m²
Projekt Detail
Mini Me reduziert Wohnen auf eine minimale Größe.
Der Grundriss ist einfach und reiht eine Funktion an die nächste, es gibt keine Türen, ausgenommen für das WC.
Der schlichten Anordnung des Grundrisses steht die geknickte Schale gegenüber, die gleichzeitig Dach und Seitenwände bildet.
Im Innenraum bleibt die Bewegung der Schale sichtbar und bewirkt eine Änderung der Raumhöhen und erzeugt spannende und ungewöhnliche Ausblicke nach Draußen.
Mini Me ist das perfekte Sommer-, oder Wochenenddomizil.
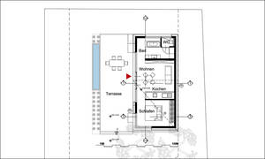
Geschoss 00:
Eingang | Bad und WC | Wohnen Kochen | Schlafen | Terrasse
Geplanter Standort: Neusiedler See, Burgenland AUT
Urheber
BEST(un)BUILT®
www.best-un-built.com





