Services
Wir unterstützen Sie zudem in folgenden Bereichen:
- Beratung
- Machbarkeitsstudie
- Individualisierung des Planes
- Ausführung Ihres Projektes
- Gebietsschutz
- Sprachanpassung Ihres Planes
- Energieausweis und Bauphysik
- Statik | Externes Service
HedgeHog
Visualisierung
zum Vergrößern anklicken
Wir freuen uns, daß Sie bei B(u)B Ihr Haus gefunden haben.
Downloads:
Weitere Bilder
Planpreise + Optionen
Ergebnis Suchfilter:
Nettofläche: 251 bis 300m |
Grundstück: weitgehend eben |
Geschosse: zweigeschossig |
Besonderheiten: avant-garde
PROJEKT BESCHREIBUNG
Anzahl der Geschosse: 2 (EG + 1 Galerie Ebene)
Bebaute Fläche 247 m² (Einheit 01 + Einheit 02)
NGF Nettogrundfläche gesamt: 262 m²
BGF Bruttogrundfläche gesamt: 319 m²
Projekt Detail
Hedgehog, eine außergewöhnliche Wohn-Skulptur.
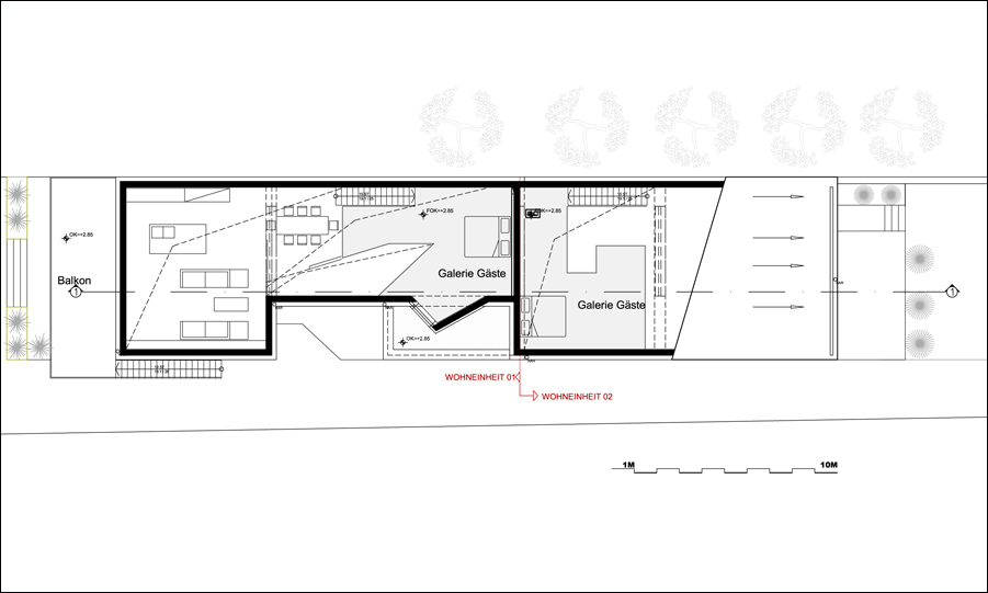
Ursprünglich für eine Künstlerfamilie entworfen, richtet dieses Haus seinen Hauptaugenmerk auf die offene Wohnlandschaft mit eingezogener Galerie Ebene.
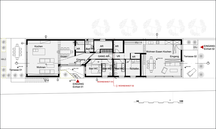
Das Haus bietet zwei völlig voneinander getrennte Wohneinheiten.
Wohneinheit 01 betritt man mittig angelegt im Grundriss – der Eingangsbereich bietet einen beeindruckenden Blick, man erlebt hier durch den Luftraum der Galerie die volle Raumhöhe von knapp 6 Meter.
Zur einen Seite des Einganges eröffnet sich der geräumige offene Wohn-, Ess-, Koochbereich, der durch eine großzügige Terrasse nach außen hin zusätzlich erweitert wird.
Zur anderen Seite des Eingangsbereiches findet man die Rückzugsräume, wie Schlafen und Sanitär. Eine offene Stiege führt eine Ebene höher zur Galerie.
Die Dachlandschaft bildet sich aus Sheddach Elementen, die dem Innenraum seinen unverwechselbaren Charakter verleihen.
Wohneinheit 02 betrifft man an der Frontseite des Gebäudes.
Das Raumkonzept ist wiederum genauso eingeteilt wie in Wohneinheit 01. Eine ideale Einliegerwohnung, unabhängiger Wohnbereich für die Kinder.
Genauso ist diese Wohneinheit aber auch als Büro oder Geschäft ideal nutzbar.
Geschoss 00: Einheit 01 und Einheit 02
Eingang | Kochen Essen Wohnen| Schlafen und Sanitär | Terrasse | Nebenräume
Geschoss 01: Einheit 01 und Einheit 02
Galerie | Balkon
Geplanter Standort: Neusiedler See, Burgenland AUT
Urheber
BEST(un)BUILT®
www.best-un-built.com







